LINE 売却査定 会員登録 ログイン

和歌山市西浜 中古戸建

1,780万円

和歌山県和歌山市西浜

紀勢本線「紀三井寺」駅徒歩50分

南海和歌山港線「和歌山港」駅徒歩51分

価格
1,780万円
間取り
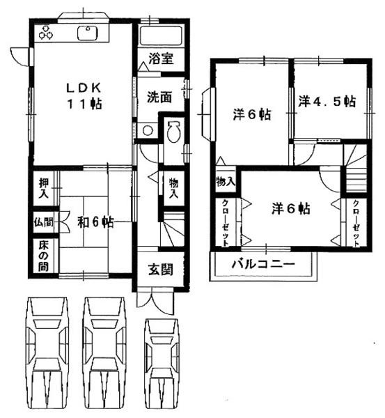
4LDK
土地面積
178.73㎡
所在地
和歌山県和歌山市西浜
交通

紀勢本線紀三井寺」駅 徒歩50分

南海和歌山港線和歌山港」駅 徒歩51分

建物面積
150.71㎡
築年月
1985年2月(築40年)

物件の特徴

  • 独立洗面台

セールスポイント

■オール電化住宅 
■一部リフォーム済でキレイです
■駐車3台可能で来客時も便利です

ポイント

 オール電化住宅   一部リフォーム済でキレイです  駐車3台可能で来客時も便利です

基本情報

販売戸数
-
総戸数
-
間取り / 詳細
4LDK
向き
-
建物面積(坪数)
150.71㎡(45.58坪)
土地面積(坪数)
178.73㎡(54.06坪)
建ぺい率 /
容積率
40%/200%
築年月
1985年2月(築40年)
駐車場 /
月額料金
有 -
土地権利
所有権
土地
(敷金 / 保証金)
- / -
建物構造
鉄筋コンクリート / 2階建
傾斜地部分面積
-
路地状敷地
-
私道負担面積
-
セットバック
高圧線下面積
-
施工会社
-
用途地域
第一種中高層住居専用
地目 / 地勢
宅地 / -
接道状況
一方(西 私道 3.2m 間口 11.5m)
国土法届出要否
不要
都市計画
市街化区域
総区画数 /
販売区画数
-/-
現況
空家
その他
法令上の制限
-
取引態様
仲介
引渡し
相談
取引条件の
有効期限
2025年11月28日

設備条件

設備条件
  • 閑静な住宅地 / バルコニー / 公営水道 / 公共下水 / オール電化 / システムキッチン / トイレ2ヶ所 / 独立洗面台 / ウォークインクロゼット
設備(その他)
    -

その他

物件番号
80412238
管理コード
148001-2921
建築確認番号
-
情報更新日
2025年11月14日
次回更新予定日
2025年11月28日
取扱会社
  • センチュリー21 際
  • 和歌山県和歌山市毛革屋丁25番地 
  • TEL:0120-555-635
  • 和歌山県知事 (3) 第3764号
    宅地建物取引士
    一級ファイナンシャルプランニング技能士
    公認 不動産コンサルティングマスター
    公認ホームインスペクター(住宅診断士)
    耐震診断士
    損害保険募集人
    一級建物アドバイザー
    インテリアデザイナー
    一級建築物石綿含有建材調査者
    二級建築施工管理技士
  • センチュリー21ジャパン加盟店
    公益社団法人不動産保証協会会員
    公益社団法人全日本不動産協会会員
    公益社団法人近畿地区不動産公正取引協議会会員
備考
第四種風致地区

和歌山市西浜 中古戸建の他の物件

  1. 5LDK (72.64㎡)

    600万円(27.31万円/坪)

  2. 5DK (87.77㎡)

    380万円(14.31万円/坪)

  3. 4LDK (82.80㎡)

    780万円(31.15万円/坪)

  4. 5LDK (78.87㎡)

    580万円(24.32万円/坪)

周辺施設

  • 雑賀崎小学校の画像

    小学校

    雑賀崎小学校

    487m(7分)

  • 西浜中学校の画像

    中学校

    西浜中学校

    2019m(26分)

支払いシミュレーション

月々の支払額
9.6
購入希望物件価格
万円
頭金
万円
金利
%
返済額(ボーナス1回分)
万円
返済期間

※ボーナスは自動で年2回分で計算されます。

近隣の物件

  1. 和歌山市和歌川町 中古戸建

    和歌山市和歌川町

    6DK (136.71㎡)

    520万円

  2. 和歌山市新庄 中古戸建

    和歌山市新庄

    4SLDK (100.19㎡)

    2,990万円

  3. 和歌山市内原 中古戸建

    和歌山市内原

    4SLDK (105.98㎡)

    1,580万円

  4. 和歌山市関戸3丁目 中古戸建

    和歌山市関戸3丁目

    5DK (90.76㎡)

    450万円

和歌山市西浜 中古戸建

和歌山市西浜 中古戸建

1,780万円

-

4LDK(150.71㎡)

お気軽にお問い合わせください

LINEからお問い合わせ 無料お問い合わせ

センチュリー21 際

0120-555-635

9:00~19:00

(休:水曜)