LINE 売却査定 会員登録 ログイン

和歌山市市小路 店舗付き住宅

1,690万円

和歌山県和歌山市市小路

南海本線「紀ノ川」駅徒歩6分

価格
1,690万円
利回り
-
土地面積(坪数)
257.49㎡(77.89坪)
築年月
1982年3月(築44年)
所在地
和歌山県和歌山市市小路
交通

南海本線紀ノ川」駅 徒歩6分

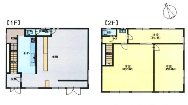
間取り
-
専有面積
-
所在階 / 階建て
-/2階建

セールスポイント

現況1階はカフェ 
2階はカメラスタジオ仕様

ポイント

現況1階はカフェ  2階はカメラスタジオ仕様

基本情報

価格
1,690万円
利回り
-
修繕積立金
-
修繕積立基金
-
間取り / 詳細
-
向き
-
専有面積
-
土地面積(坪数)
257.49㎡(77.89坪)
その他面積
-
-
-
土地権利
所有権
国土法届出要否
不要
接道状況
一方(南 公道 6.0m)
用途地域
第二種住居
地勢
-
都市計画
市街化区域
建物構造
鉄骨造
所在階 / 階建て
- / 2階建
管理方式 /
管理人
- / -
築年月
1982年3月(築44年)
取引態様
仲介
現況
-
引渡し
相談
管理会社 /
管理組合有無
- / -
取引条件の
有効期限
2026年04月30日

設備条件

設備条件
設備(その他)
    -

その他

物件番号
100312531
管理コード
148001-11596
情報更新日
2026年04月16日
次回更新予定日
2026年04月30日
取扱会社
  • センチュリー21 際
  • 和歌山県和歌山市毛革屋丁25番地 
  • TEL:0120-555-635
  • 和歌山県知事 (3) 第3764号
    宅地建物取引士
    一級ファイナンシャルプランニング技能士
    公認 不動産コンサルティングマスター
    公認ホームインスペクター(住宅診断士)
    耐震診断士
    損害保険募集人
    一級建物アドバイザー
    インテリアデザイナー
    一級建築物石綿含有建材調査者
    二級建築施工管理技士
  • センチュリー21ジャパン加盟店
    公益社団法人不動産保証協会会員
    公益社団法人全日本不動産協会会員
    公益社団法人近畿地区不動産公正取引協議会会員

支払いシミュレーション

月々の支払額

※実際の金額と異なる場合があります。

購入希望物件価格
万円
頭金
万円
金利
%
返済額(ボーナス1回分)
万円
返済期間

※ボーナスは自動で年2回分で計算されます。

近隣の物件

  1. 和歌山市六十谷 店舗付き住宅

    和歌山市六十谷

    - (93.57㎡)

    770万円

  2. 和歌山市南細工町 店舗付き住宅

    和歌山市南細工町

    - (146.11㎡)

    1,280万円

  3. 和歌山市松江北5丁目 店舗

    和歌山市松江北5丁目

    - (115.38㎡)

    290万円

  4. 和歌山市湊 店舗付住宅

    和歌山市湊

    - (297.00㎡)

    1,090万円

よく見られている物件

  1. 和歌山市本町5丁目 店舗付き戸建

    和歌山市本町5丁目

    - (184.57㎡)

    1,780万円

  2. 和歌山市神前 店舗付き住宅

    和歌山市神前

    2 (69.18㎡)

    890万円

  3. 和歌山市三葛 住宅付店舗

    和歌山市三葛

    - (118.92㎡)

    1,200万円

  4. 和歌山市松江北1丁目 店舗付住宅

    和歌山市松江北1丁目

    - (133.34㎡)

    600万円

和歌山市市小路 店舗付き住宅

和歌山市市小路 店舗付き住宅

1,690万円

-

-(-)

お気軽にお問い合わせください

LINEからお問い合わせ 無料お問い合わせ

センチュリー21 際

0120-555-635

9:00~19:00

(休:水曜)