LINE 売却査定 会員登録 ログイン

岩出市金屋 中古戸建

2,980万円

和歌山県岩出市金屋

和歌山線「岩出」駅徒歩38分

和歌山線「船戸」駅徒歩40分

阪和線「紀伊」駅徒歩61分

価格
2,980万円
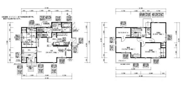
間取り
4LDK
土地面積
148.77㎡
所在地
和歌山県岩出市金屋
交通

和歌山線岩出」駅 徒歩38分

和歌山線船戸」駅 徒歩40分

阪和線紀伊」駅 徒歩61分

建物面積
106.81㎡
築年月
2015年7月(築10年)

セールスポイント

■太陽光発電システム4kw搭載 
■南向きで日当たり良し 
■駐車スペース3台可 
■平成27年築で室内とてもきれいです

ポイント

 太陽光発電システム4kw搭載   南向きで日当たり良し   駐車スペース3台可   平成27年築で室内とてもきれいです

担当者のコメント

執行役員 飯田 滉

【和歌山の不動産は際(さい)へ】認知度NO.1の加盟店ならではのネットワークを駆使し、豊富な情報量・スピード対応を可能にしています。地元和歌山に強い『センチュリー21際』にお任せください!

基本情報

販売戸数
-
総戸数
-
間取り / 詳細
4LDK
向き
-
建物面積(坪数)
106.81㎡(32.31坪)
土地面積(坪数)
148.77㎡(45.00坪)
建ぺい率 /
容積率
70%/200%
築年月
2015年7月(築10年)
駐車場 / 月額
有(3台) / -
土地権利
所有権
土地
(敷金 / 保証金)
- / -
建物構造
木造 / 2階建
傾斜地部分面積
-
路地状敷地
-
私道負担面積
-
セットバック
-
高圧線下面積
-
施工会社
-
用途地域
無指定
地目 / 地勢
宅地 / -
接道状況
一方(南 6.0m)
国土法届出要否
不要
都市計画
非線引区域
総区画数 /
販売区画数
-/-
現況
居住中
その他
法令上の制限
-
取引態様
仲介
引渡し
相談
取引条件の
有効期限
2026年05月22日

設備条件

設備条件
  • 陽当り良好 / 公営水道 / 公共下水 / オール電化 / 駐車3台可 / トイレ2ヶ所
設備(その他)
    -

その他

物件番号
79061761
管理コード
148001-18565
建築確認番号
-
情報更新日
2026年05月08日
次回更新予定日
2026年05月22日
取扱会社
  • センチュリー21 際
  • 和歌山県和歌山市毛革屋丁25番地 
  • TEL:0120-555-635
  • 和歌山県知事 (3) 第3764号
    宅地建物取引士
    一級ファイナンシャルプランニング技能士
    公認 不動産コンサルティングマスター
    公認ホームインスペクター(住宅診断士)
    耐震診断士
    損害保険募集人
    一級建物アドバイザー
    インテリアデザイナー
    一級建築物石綿含有建材調査者
    二級建築施工管理技士
  • センチュリー21ジャパン加盟店
    公益社団法人不動産保証協会会員
    公益社団法人全日本不動産協会会員
    公益社団法人近畿地区不動産公正取引協議会会員
備考
タマホームの家 長期優良住宅

岩出市金屋 中古戸建の他の物件

  1. 4SLDK (92.76㎡)

    880万円(31.37万円/坪)

周辺施設

  • 山崎小学校の画像

    小学校

    山崎小学校

    326m(5分)

  • アベイルの画像

    生活雑貨店

    アベイル

    743m(10分)

  • ツタヤの画像

    書店

    ツタヤ

    1260m(16分)

  • オートバックスの画像

    その他

    オートバックス

    1414m(18分)

  • ジョーシンの画像

    家電製品

    ジョーシン

    1477m(19分)

  • 岩出中学校の画像

    中学校

    岩出中学校

    1795m(23分)

支払いシミュレーション

月々の支払額

※実際の金額と異なる場合があります。

購入希望物件価格
万円
頭金
万円
金利
%
返済額(ボーナス1回分)
万円
返済期間

※ボーナスは自動で年2回分で計算されます。

近隣の物件

  1. 岩出市南大池 中古戸建

    岩出市南大池

    5K (93.41㎡)

    398万円

  2. 岩出市中黒 中古戸建

    岩出市中黒

    4SLDK (127.67㎡)

    1,590万円

  3. 岩出市吉田 中古戸建

    岩出市吉田

    4LDK (90.25㎡)

    790万円

  4. 岩出市根来 中古戸建

    岩出市根来

    3DK (91.14㎡)

    735万円

よく見られている物件

  1. 紀の川市打田中古戸建

    紀の川市打田

    4DK (115.92㎡)

    500万円

  2. 貴志川町岸宮 中古戸建

    紀の川市貴志川町岸宮

    3DK (76.18㎡)

    1,680万円

  3. ユニテクノス黒江モデルハウス

    海南市黒江

    2LDK (117.17㎡)

    4,480万円

  4. 貴志川町井ノ口 中古戸建

    紀の川市貴志川町井ノ口

    4DK (94.00㎡)

    180万円

岩出市金屋 中古戸建

岩出市金屋 中古戸建

2,980万円

-

4LDK(106.81㎡)

お気軽にお問い合わせください

LINEからお問い合わせ 無料お問い合わせ

センチュリー21 際

0120-555-635

9:00~19:00

(休:水曜)